東大沼4丁目 新築戸建 4棟
価格3,090万円~3890万円
| 所在地 | 相模原市南区東大沼4-4088-5 | 土地面積 | 89.9m²(27.19坪) ~100.25m²(30.32坪) |
建物面積 | 82.8m²(25.04坪) ~96.05m²(29.05坪) |
|---|---|---|---|---|---|
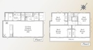
| 交通 | 小田急小田原線「相模大野」駅 バス10分 バス停「大沼」 停歩9分 | 間取 | 3LDK~4LDK | 築年月 | 令和7年11月 |
![]()
自然の豊かさと都心機能が調和した人気のエリア♪
ファミリー層に愛される暮らしやすい街!
| 総戸数 | 全4棟/今回販売 3棟 | 構造・規模 | 木造 2階建 |
|---|---|---|---|
| 建築確認番号 | 第HPA-25-09181号、他号 | 用途地域 | 第一種低層住居専用地域 |
| 引渡時期 | 相談 | 建ぺい率 | 50% |
| 容積率 | 100% | 土地権利 | 所有権 |
| 地目 | 宅地 | 都市計画 | 市街化区域 |
| 取引態様 | 媒介 | 小学校区 | 双葉小学校 |
| 中学校区 | 麻溝台中学校 | ||
| 設備・こだわり | 角地、床下収納、都市ガス、オートバス | ||
| 備考・制限等 | ●大沼保育園・・・徒歩約12分 ●誠心第一幼稚園・・・徒歩約6分 ●双葉小学校・・・徒歩約11分 ●麻溝台中学校・・・徒歩約14分 ●ライフ相模原若松店・・・徒歩約14分 ●クリエイトSD相模原東大沼店・・・徒歩約8分 |
||


























